Startseite
Metallbauplanung
3D Metallbauplanung
Über uns
Wintergarten
Referenzen
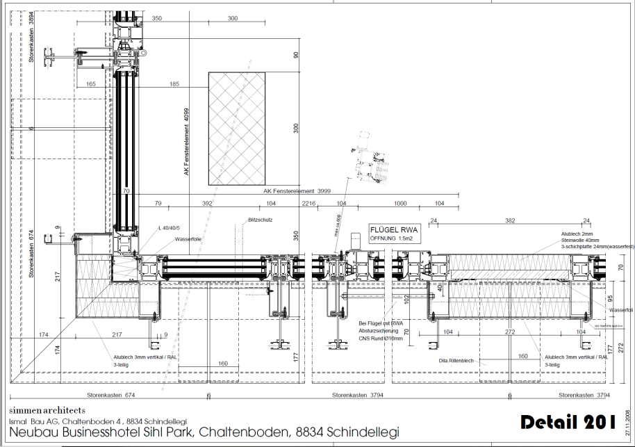
Objekt : Hotel und Geschäftshaus Sihlpark Schindellegi Projektierung und Submission
zurück